-
Superficie
150 mq
-
Bagni
4
-
Camere
3
Descrizione
Villa in fase di costruzione con progetto approvato e oneri pagati, situata nella rinomata località di Fiumetto, a Marina di Pietrasanta, a solo un chilometro dal mare
La villa, disposta su due livelli abitativi, si estenderà su un lotto di circa 1000 metri quadrati, garantendo ampi spazi sia interni che esterni, con possibilità di realizzare anche una piscina.
Al piano terra composta da una spaziosa zona living di circa 45 metri quadrati con cucina open space, oltre che un bagno di servizio con antibagno.
Inoltre si potrà godere dell'esterno direttamente dal portico di circa 15 mq , ideale per momenti conviviali con famiglia e amici . Allo stesso livello troveremo anche un vano garage/multiuso.
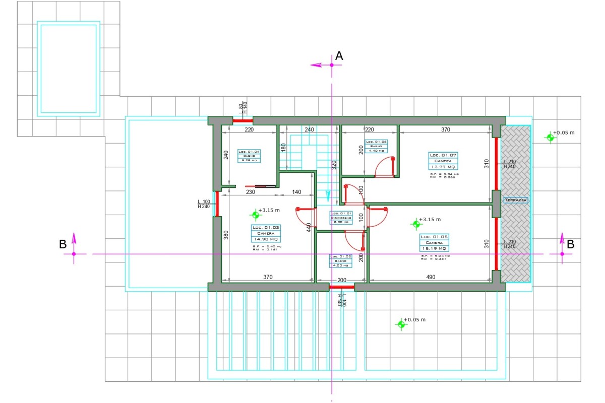
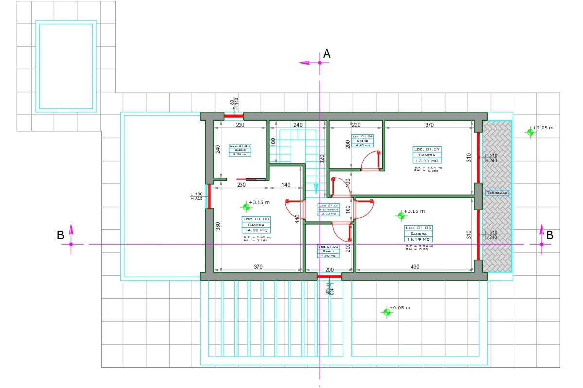
Al primo piano tre camere matrimoniali, ognuna dotata di bagno privato e balcone, garantendo privacy e comfort a tutti i membri della famiglia o degli ospiti.
Questa casa ultra moderna era stata predisposta alle più avanzate tecnologie domotiche per un'esperienza abitativa all'avanguardia, può essere prevista infatti una classe energetica A+ con un consumo di energia di soli 1,00 kWh/m² anno, garantendo efficienza energetica e sostenibilità.
ULTIMAZIONE LAVORI A CARICO DELL'ACQUIRENTE






