-
Superficie
250 mq
-
Bagni
5
-
Camere
7
Descrizione
Nel contesto esclusivo di Forte dei Marmi, in zona Vittoria Apuana a pochi metri dalla spiaggia e vicina al centro, splendida villa singola immersa nel verde. La proprietà si estende su due livelli fuori terra per una superficie totale di250mq caratterizzati da ambienti luminosi e uno stato di conservazione impeccabile.
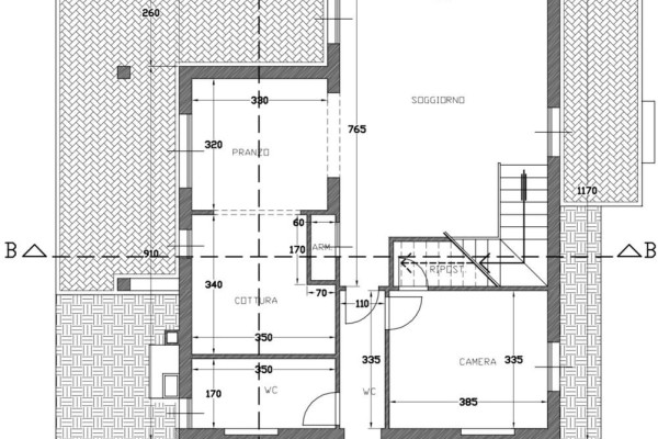
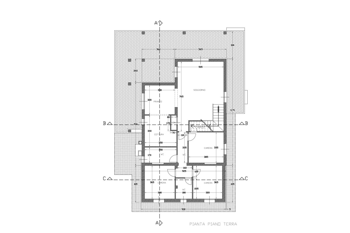
Il piano terra accoglie gli ospiti in un ampio salone living connesso con naturalezza al portico esterno e al pergolato ideale per vivere la convivialità all'aperto. Gli spazi proseguono con una sala da pranzo una cucina funzionale e una zona notte composta da tre camere da letto e due bagni.
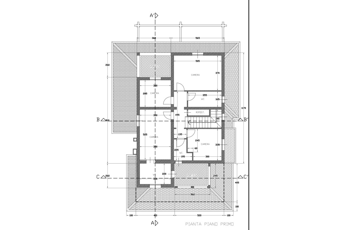
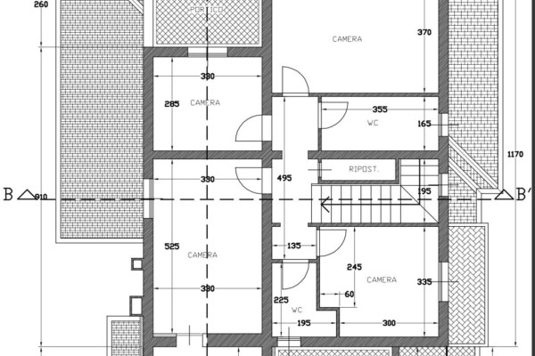
Al piano superiore si trovano altre quattro camere di cui tre arricchite da terrazze e da una loggia privata che offrono scorci suggestivi e massima riservatezza oltre a tre bagni finemente rifiniti.
La proprietà è abbracciata da un giardino privato di 950mq dove trovano spazio un forno a legna in muratura e una zona barbecue per cene estive d'eccellenza. Completano questa residenza di prestigio i posti auto coperti che garantiscono massima comodità nella zona più ricercata della Versilia.
La proprietà verrà consegnata completamente rinnovata dall'impresa e rifinita con cura artigianale in ogni dettaglio rispecchiando fedelmente l’estetica moderna e raffinata presentata nelle immagini.
Per maggiori informazioni ti aspettiamo in agenzia.
In the exclusive setting of Forte dei Marmi, in the Vittoria Apuana area, just meters from the beach and close to the town center, lies a splendid detached villa surrounded by greenery. The property extends over two levels, totaling 250 square meters, featuring bright rooms and impeccable condition.
The ground floor welcomes guests into a spacious living room, seamlessly connecting to the outdoor porch and pergola, ideal for enjoying al fresco dining. The spaces continue with a dining room, a functional kitchen, and a sleeping area comprising three bedrooms and two bathrooms.
Upstairs, there are four more bedrooms, three of which boast terraces and a private loggia, offering picturesque views and maximum privacy, as well as three finely finished bathrooms.
The property is surrounded by a 1,000 square meter private garden featuring a brick wood-fired oven and a barbecue area for exquisite summer dinners. This prestigious residence also includes covered parking spaces, ensuring maximum convenience in the most sought-after area of Versilia.
The property will be delivered completely renovated by the company and finished with artisanal care in every detail, faithfully reflecting the modern and refined aesthetic presented in the images.
For more information, please contact us at the agency.










