-
Superficie
80 mq
-
Bagni
2
-
Camere
2
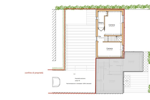
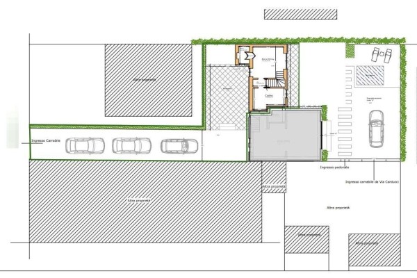
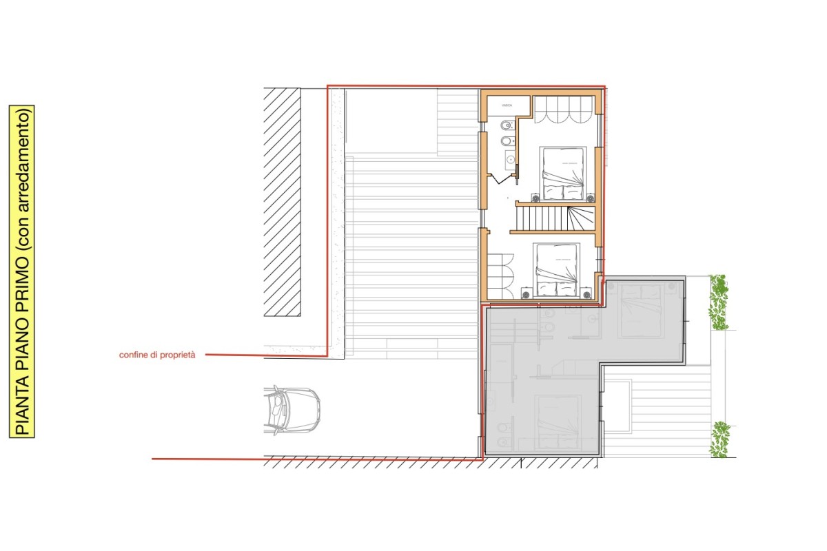
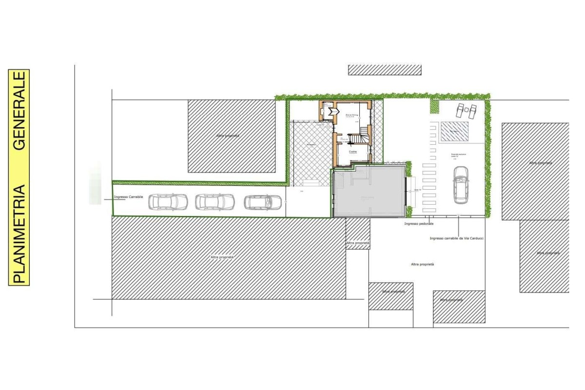
Descrizione
Nel cuore di Forte dei Marmi, in posizione centralissima e riservata, proponiamo una raffinata porzione di villa bifamiliare completamente ristrutturata (consegna prevista entro fine 2026), disposta su due livelli fuori terra e circondata da un curato giardino privato.
Al piano terra l’abitazione accoglie con un ingresso elegante che conduce alla luminosa zona living, impreziosita dall’accesso diretto alla pompeiana esterna, perfetta per pranzi e cene all’aperto in totale relax. Completano il piano una cucina funzionale e un bagno completo.
La zona notte, al primo piano, ospita due ampie camere matrimoniali e un bagno con vasca, rifinito con materiali di qualità e pensato per garantire il massimo comfort.
Una soluzione ideale per chi desidera vivere il centro di Forte dei Marmi in una residenza moderna, elegante e pronta da abitare, senza rinunciare alla tranquillità e agli spazi esterni.
Maggiori informazioni in agenzia.





