-
Superficie
250 mq
-
Bagni
5
-
Camere
7
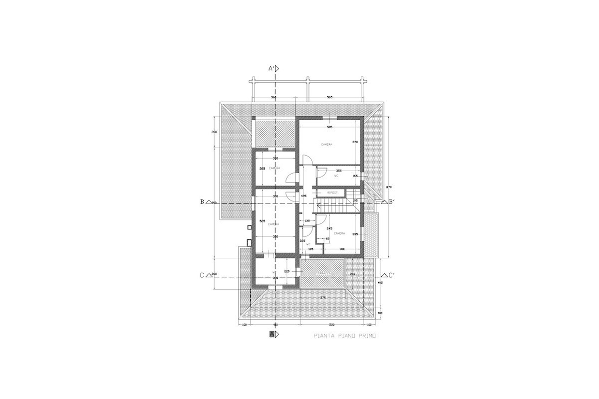
Descrizione
Forte dei Marmi , in zona Vittoria Apuana a 500m dal centro e 250m dalla spiaggia, splendida villa singola in ottimo stato disposta su due livelli fuori terra per un totale di mq.250. La casa si compone al piano terra da ingresso, ampia zona soggiorno/living con accesso sul portico esterno e pergolato, sala pranzo, cucina, 3 camere da letto e 2 bagni. Al primo piano si trovano 4 camere di cui due con terrazza e una con loggia privata, 3 bagni. Circondata dal terreno di circa 1.000mq. con posti auto privati coperto, forno a legna in muratura e barbeque.
Forte dei Marmi, in the Vittoria Apuana area, 500m from the center and 250m from the beach, splendid detached villa in excellent condition on two levels above ground for a total of 250 square meters. The house consists of an entrance hall on the ground floor, a large living area with access to the external porch and pergola, dining room, kitchen, 3 bedrooms and 2 bathrooms. On the first floor there are 4 bedrooms, two of which have a terrace and one with a private loggia, 3 bathrooms. Surrounded by land of approximately 1,000 square meters with private covered parking spaces, a brick wood-burning oven and a barbeque.
















































